16837 Cottage Shores DR #Unit 7 Ferrysburg City, MI 49456

UPDATED:
Key Details
Property Type Single Family Home, Condo
Sub Type Condominium
Listing Status Active
Purchase Type For Sale
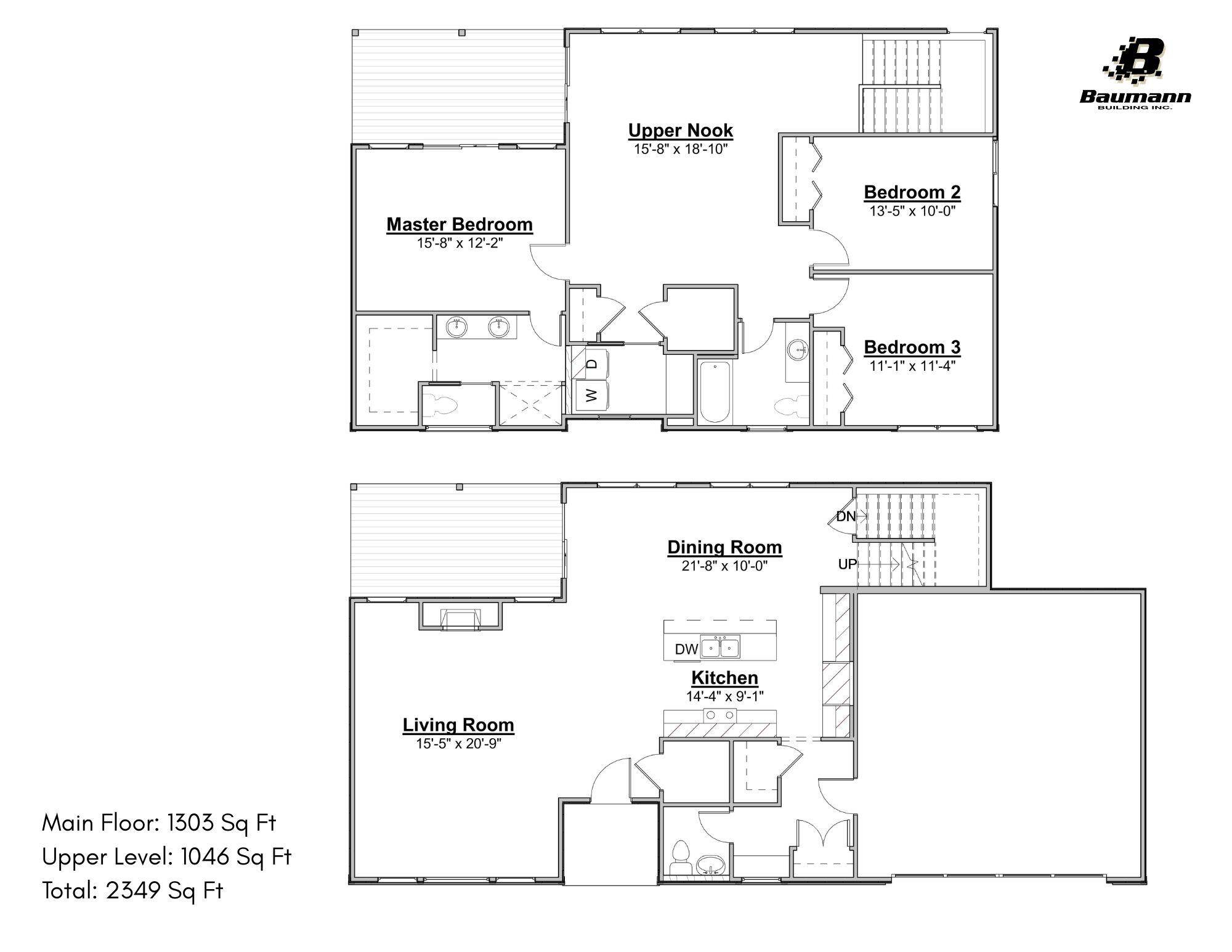
Square Footage 2,349 sqft
Price per Sqft $549
MLS Listing ID 71026009740
Style FreeStandingDetached,Traditional
Bedrooms 3
Full Baths 2
Half Baths 1
HOA Fees $250/mo
Year Built 2026
Property Sub-Type Condominium
Property Description
" Total Creative Control: Need a first-floor primary suite? A dedicated home office or a flexible guest wing? We will design and build the exact layout you've been dreaming of.
" The Perfect Location: Situated on the quiet, no-wake waters of Smith Bayou, you have a safe haven for kayaking and paddleboarding right in your backyard. When you're ready for more speed, you are just minutes away from all-sports Spring Lake, the Grand River, and the majestic Lake Michigan.
Everything is at your fingertips:
" Adventure: Access the local bike path right at our entrance--perfect for trekking into Grand Haven or Spring Lake.
" Convenience: Minutes from local shopping, Costco, and easy highway access (US-31 and I-96).
Don't Wait--Only 8 Opportunities Remain Available!
Reservations are being taken now, and they include designated dock and green space
Location
State MI
County Ottawa
Area Area70023Ferrysburg
Rooms
Upper Level BathFull
Upper Level BathFull
Main Level BathLav
Interior
Heating Forced Air, Natural Gas
Cooling Central Air
Fireplaces Number 1
Fireplace Yes
Laundry LaundryRoom, MainLevel
Exterior
Parking Features Attached
Garage Spaces 2.0
Waterfront Description DockFacilities, LakeFront, SharedWaterFrontage, WaterAccessRights
View Y/N Yes
View Water
Garage true
Building
Lot Description Sprinklers
Foundation CrawlSpace
Sewer Public Sewer
Water Public
New Construction Yes
Schools
High Schools Grand Haven
School District Grand Haven
Others
Acceptable Financing Cash, Conventional
Listing Terms Cash, Conventional
Special Listing Condition Standard
Virtual Tour https://www.propertypanorama.com/instaview/wmlar/26009740

NEARBY SCHOOL & BUSINESS
GET MORE INFORMATION




